Obiteljska kuća Petek

Investitor
Miroslav Petek
Glavni projektant
Ivana Knez, doc.dr.art., dipl.ing.arh.
Projektanti

Ivana Knez, doc.dr.art., dipl.ing.arh.
Nika Nevečerel, dipl.ing.stroj.
Željka Hitrec, dipl.ing.el.

Projektanti suradnici

Emil Rohlik, mag.ing.arch.
Martina Stjepandić, mag.ing.arch.
Ana Novak, mag.ing.mech.

Lokacija
Ivanić-Grad
Godina projektiranja/izvođenja
2020
Površina

435.67 m²

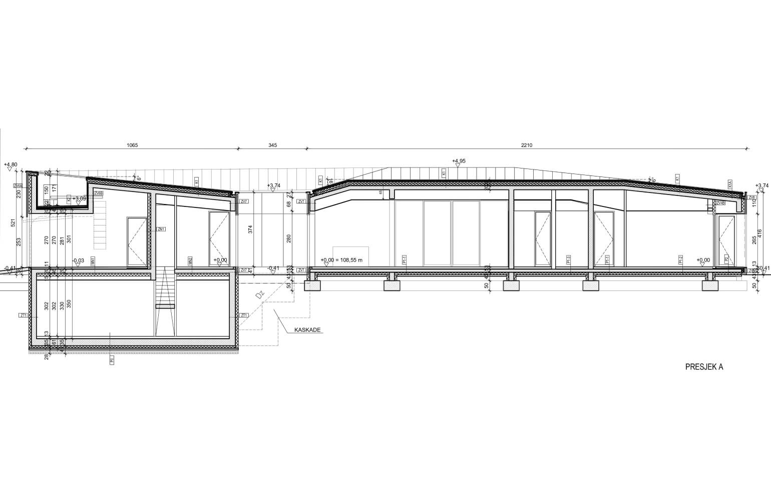
Izduženi volumen kuće proizašao je iz refleksije međa, a svoj identitet pronalazi u nutrini – uvlači vanjski prostor u unutrašnjost poput kadrova eksterijera. Kuća se "sidri" u teren parom poluatrija, čime uspostavlja kontinuitet odnosa unutarnjeg i vanjskog prostora. Inspirirana ruralno-industrijskim okruženjem, brazdama zemlje i fenomenom refleksije nafte, kuća se obavija ovojnicom od crnog glaziranog keramičkog pročelja. Izvana tamna i tajanstvena, skriva unutarnji, svijetli drveni perimetar.