Rekonstrukcija Studentskoga naselja „Stjepan Radić“: PAV 1 – 8

Investitor
Sveučilište u Zagrebu, Studentski centar Zagreb
Projektanti

Ana Alar, dipl. ing. arh.
Ana Novak, mag. ing. mech.
Željka Hitrec, dipl. ing. el.

Projektanti suradnici

Ivana Knez, dipl. ing. arh.
Emil Rohlik, mag. ing. arch

Lokacija
Zagreb
Godina projektiranja/izvođenja
2015
Površina

43.116 m²

Procijenjeni troškovi gradnje
HRK 113.480.990,00
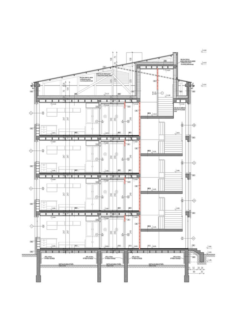
Za potrebe smještaja sudionika Sveučilišnih sportskih igara cjelovito su rekonstruirani postojeći smještajni objekti u studentskome naselju. Ostvareno je povećanje životnoga standarda uz zadržavanje kapaciteta soba, prilagodba osobama s invaliditetom te maksimalna energetska poboljšanja u cilju očuvanja niske cijene studentskoga smještaja. Rekonstrukcija je obuhvatila novo opremanje prostora, strojarske instalacije grijanja, hlađenja i ventilacije te električne instalacije jake i slabe struje.
Za KONZALT ING d.o.o.