Cjelovita obnova glavne zgrade Klinike za psihijatriju Vrapče

Investitor
Grad Zagreb
Glavni projektant
Ana Alar, dipl.ing.arh.
Projektanti

Martina Lulić Devčić, dipl. ing.arh.
Željka Hitrec, dipl.ing.el.

Projektanti suradnici

Vesna Mravinac, dipl.ing.arh.
Ana Pezer, dipl.ing.arh.
Lora Pleskina, univ.mag.ing.arch.
Marija Pavlić, mag.ing.el.

Lokacija
Zagreb
Godina projektiranja/izvođenja
2023
Površina

9.680 m²

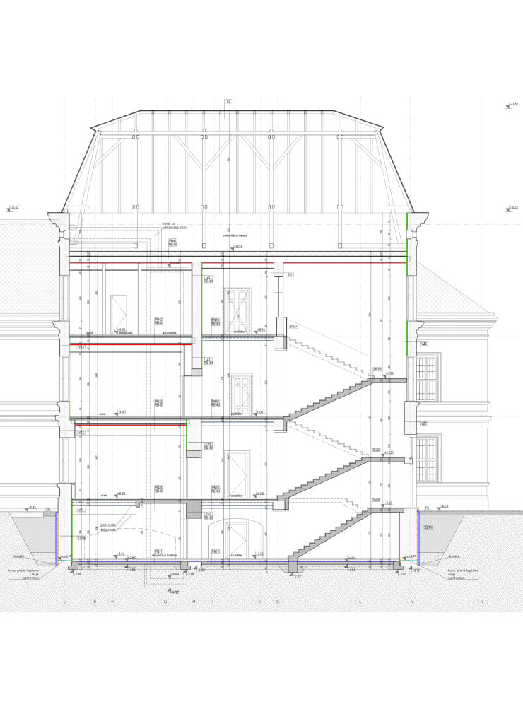
Glavna zgrada bolnice Vrapče, izgrađena 1877.–1879. u neobaroknom stilu, odlikuje se simetričnom kompozicijom s glavnim dvokatnim rizalitom i bočnim jednokatnim krilima. Pročelje je jednostavno, s ritmiziranim nizom prozora, dok unutrašnja organizacija omogućuje efikasno promatranje pacijenata i kvalitetno provjetravanje. Zbog oštećenja uzrokovanih potresom 2020. godine, predviđena je cjelovita obnova zgrade, uključujući ojačanje nosive konstrukcije te modernizaciju prostorija i instalacija prema suvremenim bolničkim standardima.