Rekonstrukcija HE Senj

Investitor
Hrvatska elektroprivreda d.d.
Glavni projektant
Emil Rohlik, mag. ing. arch.
Lokacija
Senj
Godina projektiranja/izvođenja
2018
Površina

4.494,38 m²

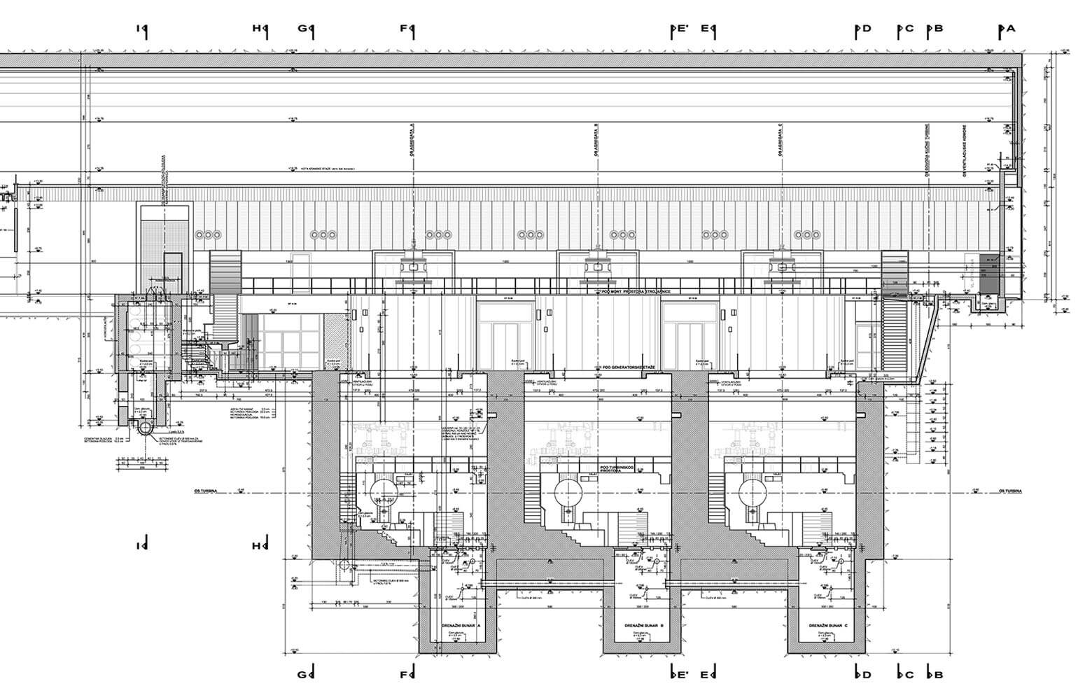
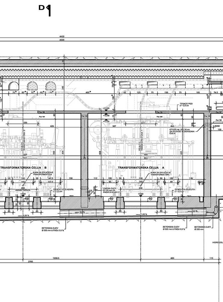
Strojarnica hidroelektrane podzemna je građevina organizirana u međusobno povezane funkcionalne cjeline. Predmet projekta zamjena je proizvodnih agregata u strojarnici uz povećanje njihove snage te zamjena prateće opreme. Uz zamjenu opreme i povećanje instalirane snage, provest će se arhitektonski i građevinski zahvati rekonstrukcije postojeće građevine kako bi se zadovoljili novonastali uvjeti uz potrebno usklađenje s važećom zakonskom i tehničkom regulativom.
Za SINTAKSA d.o.o.