Reconstruction of the City of Youth complex

Investor
City of Zagreb
Main project designer
Ana Alar, Dipl.Eng.Arch.
Project designers

Ivana Knez, Dipl.Eng.Arch.
Željka Hitrec, Dipl.Eng.E.
Nika Nevečerel, Dipl.Eng.Mech

Associate project designers

Emil Rohlik, M.Arch.
Martina Stjepandić, M.Arch.
Ana Novak, M.Eng.Mech.
Luka Rončević, M.Eng.E.
Damir Živković, M.E.E.

Location
Zagreb
Year of design / construction
2019
Total area

247.547,00 m²

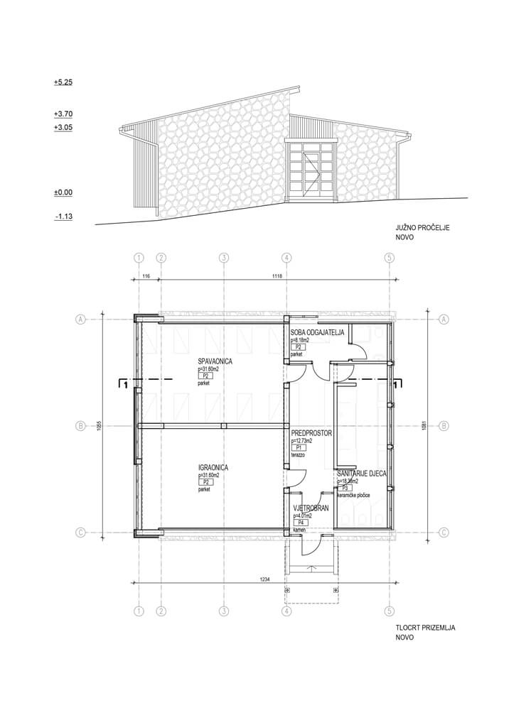
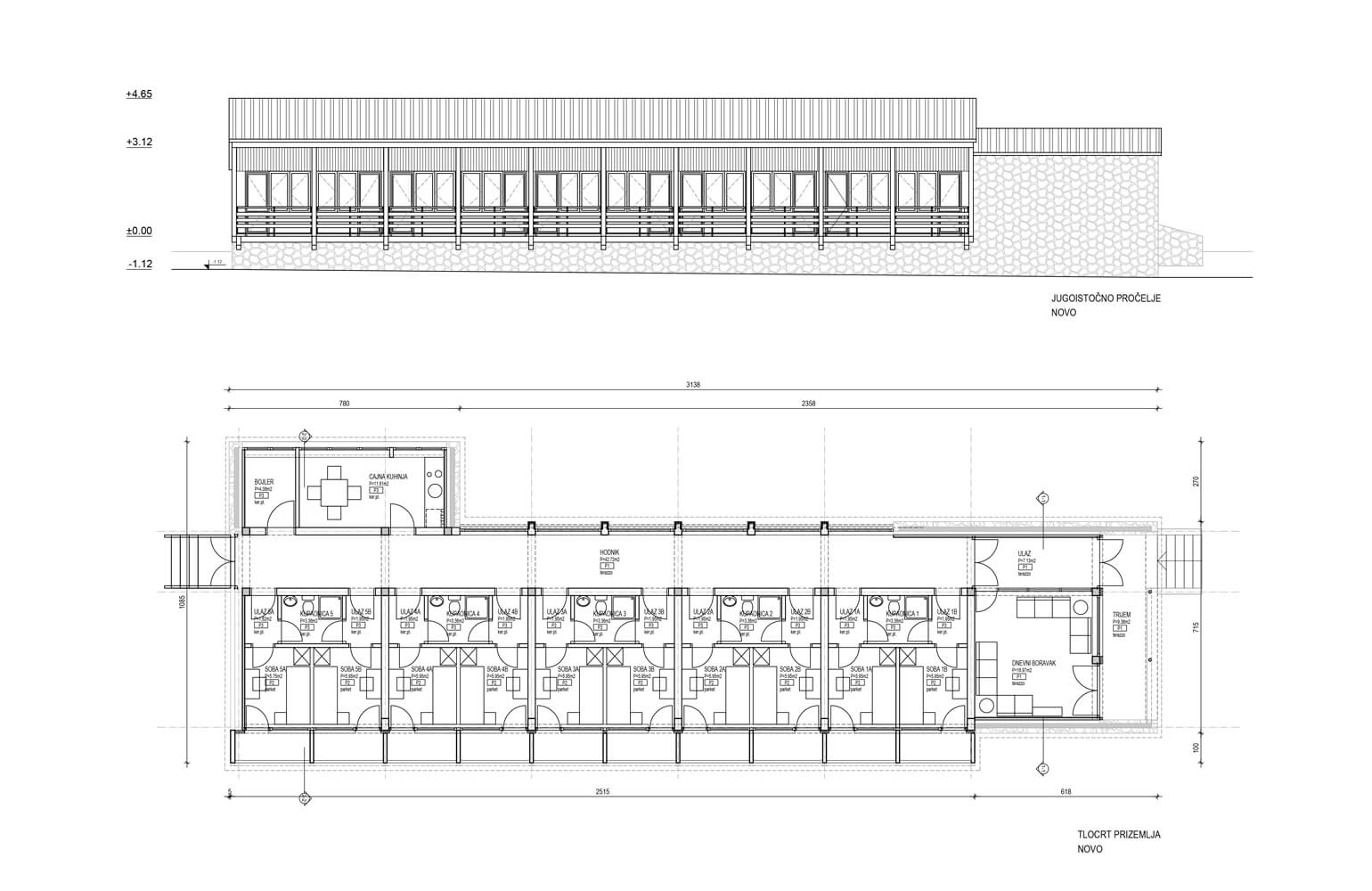
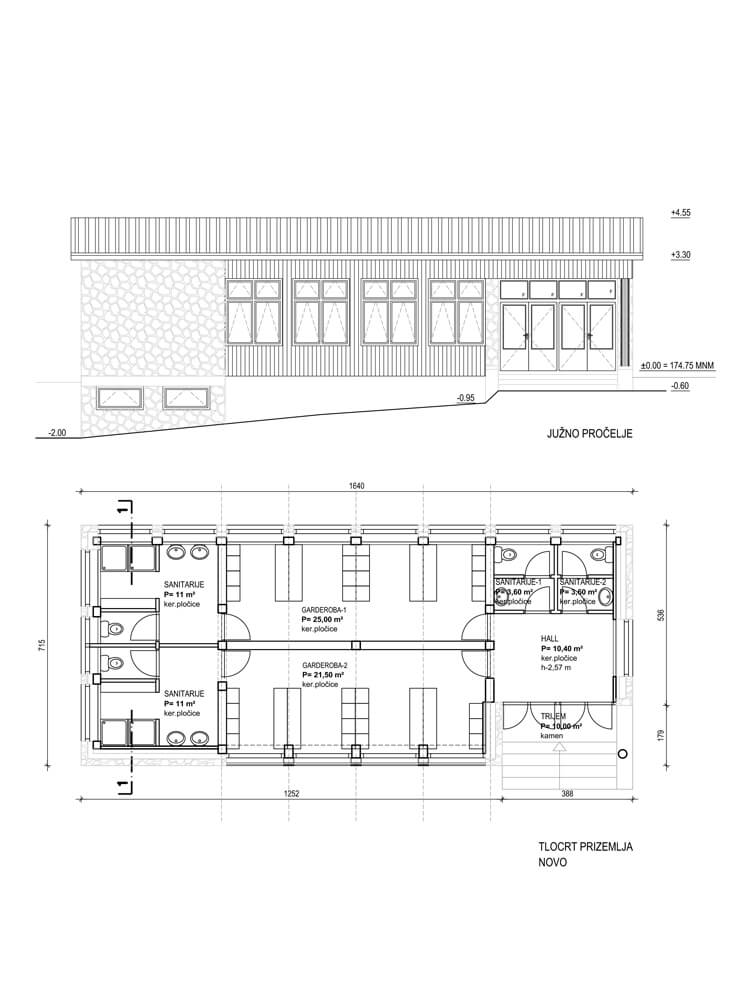
The City of Youth is a park forest and a recreation park classified as a protected cultural heritage. Its architectural and landscape value represents an important urban-architectural complex of public social purpose. The project involves the reconstruction of twenty-two accommodation and adjoining buildings and the modernization of internal infrastructure in the City of Youth. The project also covers the reconstruction of accommodation units for kindergarten and school-age children, a hostel, a restaurant and sports and social facilities.